- O nekretnini
Informacije
-
Agent Lucija Jurič
-
Broj +385916388795
-
Email lucija@viranekretnine.hr
-
Adresa Kačićeva ul. 22, 10000, Zagreb
- Prodaja
- Stan
- 1-sobni
- 1
- 34
m²
Opis nekretnine
STAN, PRODAJA, ZAGREB, DONJI GRAD, 34 m2, 1-soban
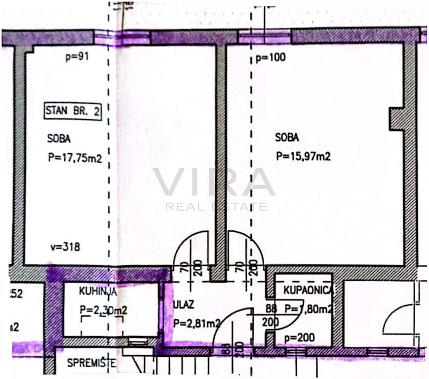
Prodaje se jednosoban stan površine 34 m2 podjeljen na 2 apartmana u prizemlju zgrade
Zgrada je izgrađena 1960.-ih godina, ima ukupno 1 kat i nalazi u ulici kneza Ljudevita Posavskog.
Stan se sastoji od dvije odvojene smještajne jedinice, a svaki apartman sastoji se od dnevnog boravka spojene s kuhinjom, hodnika i kupaonice.
U neposrednoj blizini nalazi se javni prijevoz, trgovina, škola, vrtić i svi drugi bitni sadržaji.
Orijentacija: Sjever
Grijanje: Dizalica topline (podno grijanje)
Visina stropa: 2,80 m
Parking: javni
Cijena stana: 199.500,00 EUR
Lucija Jurič
- Pojedinosti
Detalji i značajke
-
Cijena 199,500€
-
Veličina 34 m²
-
Godina izgradnje 1960
-
Vrsta nekretnine Stan
-
Broj katova Prizemlje
-
Tip nekretnine 1-sobni
-
Ponuda Prodaja
-
Broj kupaonica 1
-
Značajke Ostava/skladište
-
Priključci Struja, Voda, Kanalizacija
-
Grijanje Dizalica topline
Spremni ste napraviti korak u svijet nekretnina?
Dogovorite sastanak klikom na gumb ispod.
- Agent
Treba Vam stručna podrška?
- Slične nekretnine
Možda Vam se svidi
STAN, PRODAJA, ZAGREB, UTRINA, 57 m2, 2-soban
- 240,000€
- Krevet: 1
- Kupaona: 1
STAN, PRODAJA, ZAGREB, TREŠNJEVKA, 79 m2, 4-soban
- 175,000€
- Kreveti: 3
- Kupaone: 2
STAN, PRODAJA, ZAGREB, KVATRIĆ, 39 m2, 2-soban
- 235,000€
- Krevet: 1
- Kupaona: 1
STAN, PRODAJA, ZAGREB, GORNJI GRAD, 100m2, 4-soban
- 395,000€
- Kreveti: 2
- Kupaone: 2