Kupnja
ZAGREB, SIGEČICA
STAN, PRODAJA, ZAGREB, SIGEČICA, 77 m2, 3-soban
3-sobni
2
77 m2
269.000 €
Kvadratura
77 m2
Godina Izgradnje
1979/2014 (god. adapt)
Broj soba
3-sobni
Spavaće sobe
2
Kupaonice
2 Kupaonice s wc-om
Parkirna mjesta
Javni naplatni 2. zona
STAN, PRODAJA, ZAGREB, SIGEČICA, 77 m2, 3-soban
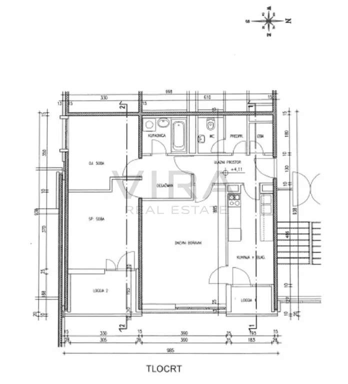
Prodaje se trosoban stan površine 77 m2 na prvom katu zgrade s liftom.
Zgrada je izgrađena 1979. godine, ima ukupno 7 katova te se nalazi u naselju Sigečica.
Stan se sastoji od dnevnog boravka, kuhinje, blagovaonice, 2 spavaće sobe, 2 kupaonice s wc-om, loggie i hodnika.
Stanu pripada spremište u podrumu.
U neposrednoj blizini nalazi se javni prijevoz, trgovina, škola, vrtić i svi drugi bitni sadržaji.
Orijentacija: Zapad/Istok
Grijanje: Gradska toplana
Parking: javni naplatni 2. zona
Visina stropa: 2,6 m
Cijena stana: 269.000,00 EUR
Tomislav Petrović
Licencirani agent za nekretnine
Mob: +385 95 845 9894
E-mail: tomislav@viranekretnine.hr












