Kupnja
ZAGREB, RAVNICE - KOLONIJA
STAN, PRODAJA, ZAGREB, RAVNICE - KOLONIJA, 112m2, 4-soban
4-soban
2
112 m2
585.000 €
Kvadratura
112 m2
Godina Izgradnje
1935/2025 (god. adapt.)
Broj soba
4-soban
Spavaće sobe
3
Kupaonice
2 kupaonice s wc-om
Parkirna mjesta
Javni besplatni
STAN, PRODAJA, ZAGREB, RAVNICE - KOLONIJA, 136m2, 4-soban
Prodaje se prostrani luksuzni 4-sobni stan smješten na 1. katu zgrade bez lifta u simpatičnom malom kvartu Željeznička kolonija na Ravnicama.
Zgrada je izgrađena 1935. godine i ima ukupno 2 kata. U zgradi se nalazi ukupno 4 stana. Zgrada je zbog izuzetno kvalitetne gradnje u potresu prošla neoštećena. Krov zgrade je obnovljen 2023. godine te se trenutačno pregovara oko nove fasade i uređenja dvorišta.
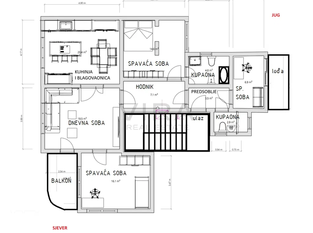
Stan se sastoji od dnevnog boravka, prostrane blagovaonice i kuhinje, 3 spavaće sobe, 2 kupaonice s wc-om, predsoblja, hodnika, loggie i balkona. Stanu pripadaju i terasa u potkrovlju kao i betonsko spremište u podrumu zgrade. Tlocrtna površina stana s pripadcima iznosi 136m2.
Stan je temeljito renoviran u 2025. godini, uz izvedene sve ključne građevinske i instalacijske radove, što omogućuje maksimalnu udobnost i dugoročnu sigurnost. Renovacija je obuhvatila:
Konstrukcijske radove – obradu i ojačanje masivnih drvenih greda (stan je djelomično na drvenim gredama, djelomično na betonskoj deki), te postavljanje novih podova s dodatnom toplinskom i zvučnom izolacijom.
Zidovi i stropovi – nova obrada zidova i spušteni stropovi s izolacijom; visina stropova iznosi 2,75 – 2,80 m.
Instalacije – potpuno nove instalacije struje, vode i grijanja: plinsko etažno grijanje te električno podno grijanje u kupaonici.
Stolarija i oprema – PVC prozori s troslojnim staklima i komarnicima, protuprovalna ulazna vrata, obnovljena izvorna unutarnja stolarija.
Klima uređaji – visokokvalitetni Daikin klima uređaji.
Kuhinja i kućanski aparati – nova DanKüchen kuhinja po mjeri, opremljena aparatima najviše kvalitete u svim prostorijama
Stan je idealan za one koji traže kvalitetno renoviran prostor, spreman za useljenje bez dodatnih ulaganja na jednoj od najpoželjnijih lokacija u Zagrebu.
Veći dio dvorišta oko zgrade je zajednički prostor svih stanara.
U neposrednoj blizini nalazi se javni prijevoz, trgovina, škola, vrtić i svi drugi bitni sadržaji.
Orijentacija: SZ - SI - JZ- JI
Grijanje: Etažno plinsko centralno
Visina stropa: 2,8 m
Parking: Javni besplatni parking
Cijena stana: 517.000,00 EUR
Josip Palić
Licencirani agent za nekretnine
Medallion, obrt za poslovanje nekretninama i druge usluge, vl. Josip Palić
Mob: +385 95 849 9626
E-mail: josip@viranekretnine.hr















