Arhiva
Grad Zagreb, Peščenica - Žitnjak, Kozari bok
KUĆA, PRODANO, ZAGREB, ŽITNJAK, 53 m2 (prodano)
3-sobni
1
53 m2
75.000 €
Kvadratura
53 m2
Godina Izgradnje
1996
Broj soba
3-sobni
Spavaće sobe
2
Kupaonice
1
Parkirna mjesta
Besplatni javni
KUĆA, PRODANO, ZAGREB, ŽITNJAK, 53 m2
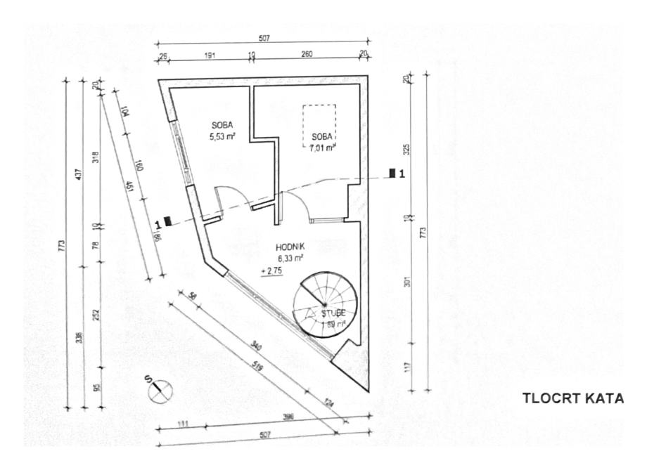
Prodana kuća površine 53 m2 u ulici Radnički put.
Kuća je izgrađena 1996. godine i krovište je promijenjeno prije dvije godine.
Kuća se sastoji od:
PRIZEMLJA: Kuhinja, kupaonica i dnevni boravak
PRVI KAT: Dvije spavaće sobe
Orijentacija: S-J-Z
Grijanje: na struju
Parking: besplatni javni
Cijena: 75 000 Eura
Jakša Stecca
Licencirani agent za nekretnine
Konzul nekretnine, obrt za poslovanje nekretninama i druge usluge, vl. Jakša Stecca
jaksa@viranekretnine.com
Mob: +385 98 907 5549











