Kupnja
Grad Zagreb, Novi Zagreb - Zapad, Trnsko
STAN, PRODAJA, ZAGREB, TRNSKO, 50 m2, 2-soban (prodaja)
2-sobni
1
50 m2
145.000 €
Kvadratura
50 m2
Godina Izgradnje
1965
Broj soba
2-sobni
Spavaće sobe
1
Kupaonice
Kupaonica, wc
Parkirna mjesta
Javni besplatni
STAN, PRODAJA, ZAGREB, TRNSKO, 50 m2, 2-soban
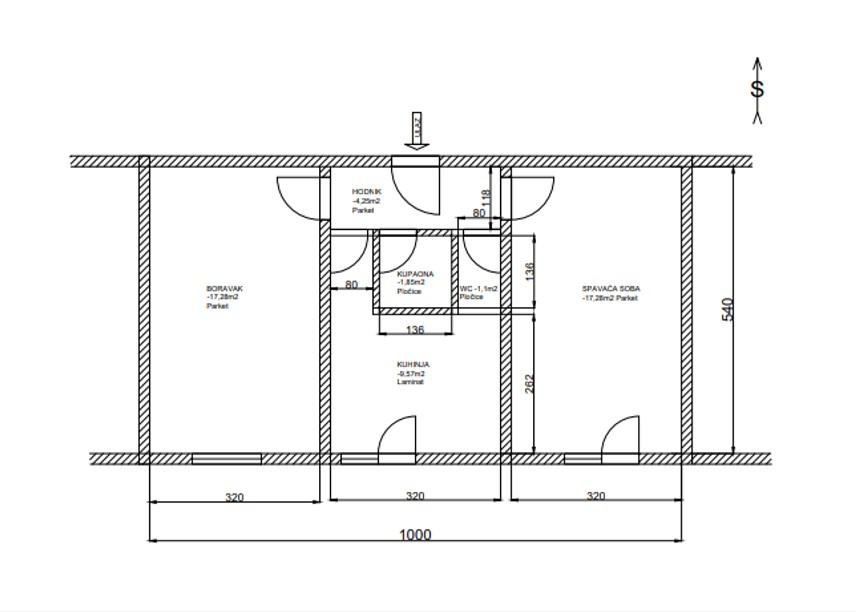
Prodaje se dvosoban stan površine 50 m2 na trećem katu zgrade bez lifta.
Zgrada je izgrađena 1964. godine, ima ukupno četiri kata te se nalazi u naselju Trnsko.
Stan se sastoji od dnevnog boravka, kuhinje s blagovaonom, spavaće sobe, kupaonice, wc-a i hodnika.
Grijanje je etažno plinsko centralno.
Nalazi se u neposrednoj blizini javnog prijevoza, trgovina, ugostiteljskih obrta, škole, doma zdravlja i svih drugih bitnih sadržaja.
Orijentacija: Jug
Grijanje: Etažno plinsko centralno
Parking: besplatni javni
Cijena stana: 145 000 eura









