Arhiva
Grad Zagreb, Trešnjevka - Jug, Knežija
STAN, PRODAJA, ZAGREB, KNEŽIJA, 41 m2, 1-soban (prodaja)
1-sobni
1
41 m2
150.000 €
Kvadratura
41 m2
Godina Izgradnje
1969
Broj soba
1-sobni
Spavaće sobe
1
Kupaonice
Kupaonica s wc-om
Parkirna mjesta
Besplatni javni
STAN, PRODAJA, ZAGREB, KNEŽIJA, 41 m2, 1-soban
STAN, PRODAJA, ZAGREB, KNEŽIJA, 41 m2, 1-soban
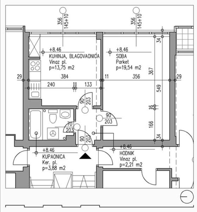
Prodaje se jednosoban stan površine 41 m2 na trećem katu zgrade bez lifta.
Zgrada je izgrađena 1969. godine i ima ukupno 4 kata te se nalazi u ulici Josipa Gigla.
Stan se sastoji od kuhinje s blagovaonicom, spavaće sobe, kupaonice s wc-om te predsoblja.
Instalacije struje i vode su u potpunosti adaptirane 2005. godine.
Stanu pripada i spremište u podrumu zgrade.
U neposrednoj blizini nalazi se javni prijevoz, trgovina, škola, vrtić i svi drugi bitni sadržaji.
Orijentacija: Istok
Grijanje: Gradska toplana - centralno
Visina stropa: 2,6m
Parking: besplatni javni parking
Cijena stana: 150.000,00 EUR
Josip Palić
Agent za nekretnine, suradnik
Medallion, obrt za savjetovanje i usluge, vl. Josip Palić
Mob: +385 95 849 9626
E-mail: josip@viranekretnine.hr





