Arhiva
Grad Zagreb, Podsused - Vrapče, Gajnice
STAN, PRODAJA, ZAGREB, GAJNICE, 76m2, 3-soban (prodaja)
3-sobni
1
76 m2
190.000 €
Kvadratura
76 m2
Godina Izgradnje
1976
Broj soba
3-sobni
Spavaće sobe
2
Kupaonice
Kupaonica, wc
Parkirna mjesta
Javni besplatni
STAN, PRODAJA, ZAGREB, GAJNICE, 76m2, 3-soban
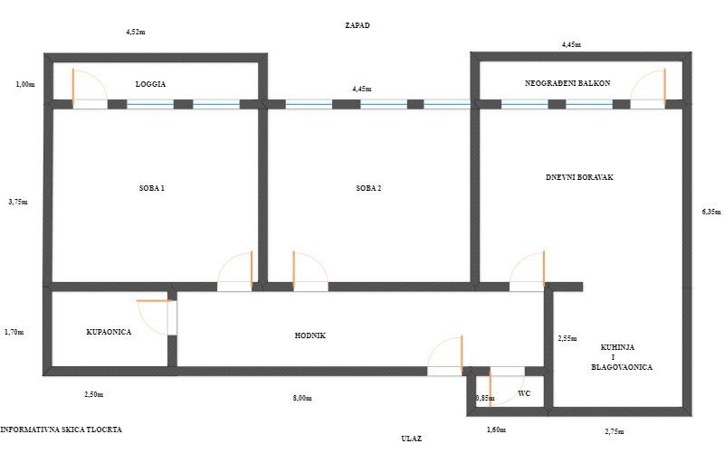
Prodaje se trosoban stan površine 76 m2 na šestom katu zgrade s liftom.
Zgrada je izgrađena 1976. godine, ima ukupno 8 katova te se nalazi u Čileanskoj ulici.
Stan se sastoji od dnevnog boravka, kuhinje, 2 spavaće sobe, hodnika, kupaonice, wc-a, loggie i neograđenog balkona.
Stanu pripada spremište u podrumu i na tavanu.
U neposrednoj blizini nalazi se javni prijevoz, trgovina, škola, vrtić i svi drugi bitni sadržaji.
Orijentacija: Zapad
Grijanje: Gradska toplana - centralno
Visina stropa: 2,5m
Parking: besplatan javni parking
Cijena stana: 190.000,00 EUR
Josip Palić
Agent za nekretnine, suradnik
Medallion, obrt za savjetovanje i usluge, vl. Josip Palić
Mob: +385 95 849 9626
E-mail: josip@viranekretnine.hr









