Kupnja
ZAGREB, ODRA
STAN, PRODAJA, ZAGREB, ODRA, 67 m2, 3-soban
3-soban
1
67 m2
205.000 €
Kvadratura
67 m2
Godina Izgradnje
2007
Broj soba
3-soban
Spavaće sobe
2
Kupaonice
Kupaonica
Parkirna mjesta
Javni besp
STAN, PRODAJA, ZAGREB, ODRA, 67 m2, 3-soban
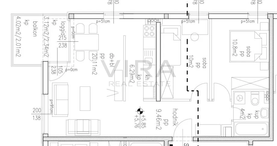
Prodaje se trosoban stan površine 67 m2 na drugom katu zgrade bez lifta.
Zgrada je izgrađena 2007. godine, ima ukupno 2 kata i nalazi se u ulici Ivana Lackovića Croate.
Stan se sastoji od dnevnog boravka, kuhinje, blagovaonice, 2 spavaće sobe, hodnika, kupaonice i balkona.
Stanu pripada spremište u podrumu zgrade.
U neposrednoj blizini nalazi se javni prijevoz, trgovina, škola, vrtić i svi drugi bitni sadržaji.
Orijentacija: zapad/jug
Grijanje: centralno etažno plinsko
Visina stropa: 2,60 m
Parking: javni besplatni
Cijena stana: 205.000,00 EUR

















