Arhiva
Grad Zagreb, Malešnica
STAN, PRODAJA, ZAGREB, MALEŠNICA, 82m2, 3,5-soban
3,5-sobni
1
82 m2
220.000 €
Kvadratura
82 m2
Godina Izgradnje
2006
Broj soba
3,5-sobni
Spavaće sobe
3
Kupaonice
Kupaonica + wc
Parkirna mjesta
Garaža, Javni besplatni
STAN, PRODAJA, ZAGREB, MALEŠNICA, 82m2, 3,5-soban
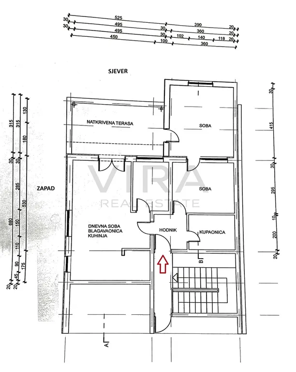
Prodaje se troipolsoban stan tlocrtne površine 82m2 na trećem katu zgrade bez lifta.
Zgrada je izgrađena 2006. godine, ima ukupno 3 kata i nalazi u ulici Samoborska cesta.
Stan se sastoji od dnevnog boravka i blagovaonice, kuhinje, 3 spavaće sobe, hodnika, kupaonice s wc-om i natkrivene terase.
Stanu pripada garaža bruto površine 13,14m2.
Klima uređaj nalazi se u dnevnom boravku.
U neposrednoj blizini nalazi se javni prijevoz, trgovina, škola, vrtić i svi drugi bitni sadržaji.
Orijentacija: Sjever - Zapad
Grijanje: Plinsko etažno centralno
Visina stropa: 2,65 m
Parking: Garaža, Javni besplatni parking
Cijena stana: 220.000,00 EUR
Josip Palić
Licencirani agent za nekretnine
Medallion, obrt za savjetovanje i usluge, vl. Josip Palić
Mob: +385 95 849 9626
E-mail: josip@viranekretnine.hr












