Arhiva
STAN, PRODAJA, ZAGREB, KNEŽIJA, 42m2, 1-soban
STAN, PRODAJA, ZAGREB, KNEŽIJA, 42m2, 1-soban
1-sobni
1
42 m2
180.000 €
Kvadratura
42 m2
Godina Izgradnje
1969/2019 (god. adaptacije)
Broj soba
1-sobni
Spavaće sobe
1
Kupaonice
Kupaonice s wc-om
Parkirna mjesta
Besplatni javni
STAN, PRODAJA, ZAGREB, KNEŽIJA, 42m2, 1-soban
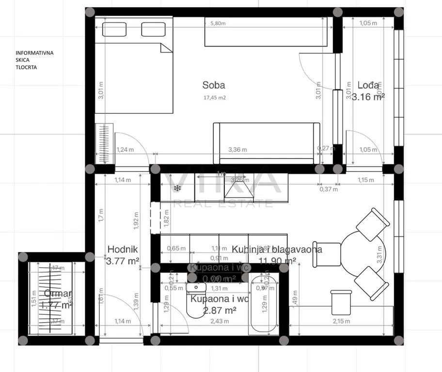
Prodaje se jednosoban stan površine 42m2 na osmom katu zgrade s liftom.
Zgrada je izgrađena 1969. godine i ima ukupno 8 katova te se nalazi u ulici Braće Cvijića.
Stan se sastoji od spavaće sobe, kuhinje s blagovaonicom, kupaonice s wc-om, hodnika te loggie. Stanu pripada dio spremišta u prizemlju.
Stan je u potpunosti adaptiran 2019. godine sa svim električnim i vodovodnim instalacijama te je sav namještaj rađen po mjeri. U stanu se nalaze 2 klima uređaja.
U neposrednoj blizini nalazi se javni prijevoz, trgovina, škola, vrtić i svi drugi bitni sadržaji.
Orijentacija: Zapad
Grijanje: Toplana
Visina stropa: 2,6m
Parking: besplatni javni
Cijena stana: 180.000,00 EUR
Josip Palić
Licencirani agent za nekretnine
Medallion, obrt za savjetovanje i usluge, vl. Josip Palić
Mob: +385 95 849 9626
E-mail: josip@viranekretnine.hr






