Arhiva
Grad Zagreb, Novi Zagreb - Zapad, Lanište
STAN, PRODAJA, ZAGREB, JARUŠČICA, 40 m2, 2-soban (prodaja)
2-soban
1
40 m2
155.000 €
Kvadratura
40 m2
Godina Izgradnje
2007.
Broj soba
2-soban
Spavaće sobe
1
Kupaonice
Kupaonica s wc-om
Parkirna mjesta
Besplatni javni
STAN, PRODAJA, ZAGREB, JARUšČICA, 40 m2, 2-soban
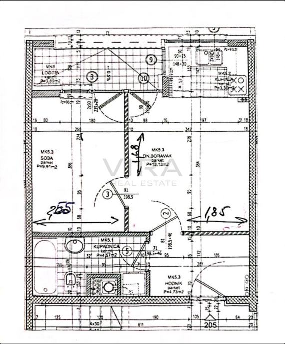
Prodaje se dvoosoban stan površine 40 m2 na drugom katu zgrade s liftom.
Zgrada je izgrađena 2007. godine, ima ukupno 7 katova te se nalazi u ulici Jaruščica.
Stan se sastoji od dnevnog boravka, kuhinje i blagovaonice, spavaće sobe, kupaonice s wc-om, balkona i hodnika.
Stanu pripada spremište u prizemlju zgrade.
U neposrednoj blizini nalazi se javni prijevoz, trgovina, škola, vrtić i svi drugi bitni sadržaji.
Orijentacija: Sjever
Grijanje: Centralno etažno plinsko
Parking: besplatni javni
Visina stropa: 2,6 m
Cijena stana: 155.000,00 EUR
Tomislav Petrović
Licencirani agent za nekretnine
Petris nekretnine, obrt za poslovanje nekretninama i druge usluge, vl. Tomislav Petrović
Mob: +385 95 845 9894
E-mail: tomislav@viranekretnine.hr







