Kupnja
ZAGREB, GAJNICE
STAN, PRODAJA, ZAGREB, GAJNICE, 162m2, 4-soban
4-soban
1
162 m2
419.000 €
Kvadratura
162 m2
Godina Izgradnje
2009
Broj soba
4-soban
Spavaće sobe
3
Kupaonice
Kupaonica s wc-om
Parkirna mjesta
Garažno i vanjsko
STAN, PRODAJA, ZAGREB, GAJNICE, 162m2, 4-soban
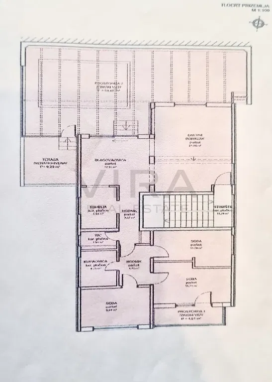
Prodaje se četverosoban stan površine 162 m2 u visokom prizemlju zgrade bez lifta.
Stan se sastoji od dnevnog boravka, kuhinje s blagovaonicom, tri spavaće sobe, kupaonice s WC-om, zasebnim WC-om, hodnika, terase, loggie i zimskog vrta s bazenom.
Sam stan je površine 152 m2, a pripada mu terasa od 9 m2 te garažno i vanjsko parkirno mjesto, svako površine 12 m2.
Zgrada je izgrađena 2009. godine, ima ukupno 2 kata i nalazi se ulici Karažnik.
U neposrednoj blizini nalazi se javni prijevoz, trgovina, škola, vrtić i svi drugi bitni sadržaji.
Orijentacija: istok- sjever -jug -zapad
Grijanje: centralno plinsko etažno
Parking: garažno i jedno vanjsko parkirno mjesto
Visina stropa: 2.7 m
Cijena: 419.000,00 EUR













