Kupnja
Grad Zagreb, Donji grad
STAN, PRODAJA, ZAGREB, DONJI GRAD, 87 m2, 3-sobni
3-sobni
2
87 m2
300.000 €
Kvadratura
87 m2
Godina Izgradnje
1974
Broj soba
3-sobni
Spavaće sobe
2
Kupaonice
2 kupaonice
Parkirna mjesta
1. zona javni naplatni
STAN, PRODAJA, ZAGREB, DONJI GRAD, 87 m2, 3-sobni
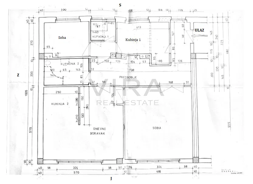
Prodaje se trosoban stan površine 87 (u naravi 95) m2 na drugom katu zgrade bez lifta.
Zgrada je izgrađena 1974. godine i ima ukupno dva kata.
Stan se sastoji od prostranog dnevnog boravka, dvije kuhinje, dvije spavaće sobe, dvije kupaonice te hodnika.
Stan je adaptiran 2004.godine.
Stan se nalazi na odličnoj, mirnoj lokaciji, u neposrednoj blizini, škole, trgovina, tramvaja i ostalih bitnijih sadržaja.
Orijentacija: Sjever - Jug - Zapad
Grijanje: etažno plinsko centralno
Parking: Javni naplatni (1.zona)
Cijena: 330.000 eura












