Kupnja
ZAGREB, DONJI GRAD
STAN, PRODAJA, ZAGREB, DONJI GRAD, 34 m2, 1-soban
1-soban
1
34 m2
199.500 €
Kvadratura
34 m2
Godina Izgradnje
1960
Broj soba
1-soban
Spavaće sobe
1-soban
Kupaonice
Kupaonica+wc
Parkirna mjesta
Javni
STAN, PRODAJA, ZAGREB, DONJI GRAD, 34 m2, 1-soban
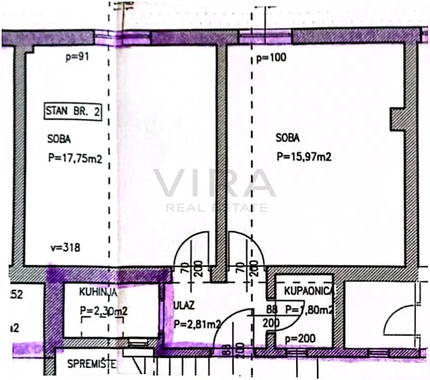
Prodaje se jednosoban stan površine 34 m2 podjeljen na 2 apartmana u prizemlju zgrade
Zgrada je izgrađena 1960.-ih godina, ima ukupno 1 kat i nalazi u ulici kneza Ljudevita Posavskog.
Stan se sastoji od dvije odvojene smještajne jedinice, a svaki apartman sastoji se od dnevnog boravka spojene s kuhinjom, hodnika i kupaonice.
U neposrednoj blizini nalazi se javni prijevoz, trgovina, škola, vrtić i svi drugi bitni sadržaji.
Orijentacija: Sjever
Grijanje: Dizalica topline (podno grijanje)
Visina stropa: 2,80 m
Parking: javni
Cijena stana: 199.500,00 EUR








