Arhiva
Grad Zagreb, Črnomerec
STAN, PRODAJA, ZAGREB, ČRNOMEREC, 74m2, 2-soban
3-sobni
1
74 m2
229.000 €
Kvadratura
74 m2
Godina Izgradnje
1971
Broj soba
3-sobni
Spavaće sobe
1
Kupaonice
Kupaonica, wc
Parkirna mjesta
Javni naplatno
STAN, PRODAJA, ZAGREB, ČRNOMEREC, 74m2, 2-soban
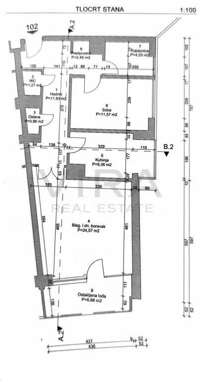
Prodaje se trosoban stan površine 74m2 na 10. katu zgrade s 3 lifta.
Zgrada je izgrađena 1971. godine, ima ukupno 16 katova i nalazi se u ulici Prilaz Baruna Filipovića.
Stan se sastoji od dnevnog boravka, kuhinje i blagovaonice, spavaće sobe, hodnika, kupaonice, wc-a, izbe te zatvorene loggie.
Stanu pripada spremište u podrumu.
Kuhinja i kuhinjske instalacije u potpunosti su obnovljene. Također, u stanu se nalaze 2 klima uređaja.
Prebacivanjem kuhinje u prostrani dnevni boravak možete dobiti još jednu spavaću sobu u stanu.
U neposrednoj blizini nalazi se javni prijevoz, trgovina, škola, vrtić i svi drugi bitni sadržaji.
Orijentacija: JI/SI/SZ
Grijanje: etažno centralno, toplana
Visina stropa: 2,6 m
Parking: javni naplatni, 2. zona
Cijena stana: 239.000,00 EUR
Josip Palić
Licencirani agent za nekretnine
Medallion, obrt za savjetovanje i usluge, vl. Josip Palić
Mob: +385 95 849 9626
E-mail: josip@viranekretnine.hr








